© 2024 - Blanko Srl - Tutti i diritti sono riservati.
TRASFORMAZIONE DEGLI SPAZI INTERNI
Il processo inizia con uno studio approfondito dell'immobile, considerando ogni aspetto per massimizzare comfort, funzionalità ed estetica. La nostra squadra di architetti e interior designer non segue schemi prestabiliti, ogni decisione, dalla demolizione di pareti non portanti alla creazione di nuovi ambienti, é guidata dall'obiettivo di migliorare la qualità di vita dei futuri abitanti.
Alla Blanko Srl ogni immobile che acquistiamo é una tela bianca pronta per essere trasformata in una moderna opera d'arte abitativa. Crediamo fermamente che ogni spazio abbia una storia unica da raccontare e un potenziale inespresso da scoprire. La creazione delle planimetrie per le modifiche degli appartamenti é progettata per valorizzare al meglio le caratteristiche di ogni immobile.
In alcuni casi, abbiamo optato per radicali trasformazioni strutturali - rimuovendo vecchie divisioni e costruendo nuove configurazioni spaziali - per dare vita a soluzioni abitative che rispondono alle esigenze di un vivere contemporaneo. Questa attenzione alla ristrutturazione funzionale assicura che l’immobile non solo sembri nuovo, ma sia effettivamente modernizzato nei suoi spazi e nella sua essenza.
Ogni planimetria é il risultato di un attento bilanciamento tra estetica e funzionalità, progettata non solo per soddisfare le esigenze immediate ma per garantire che l’immobile continui a offrire comfort, bellezza ed efficienza energetica per gli anni a venire. Questo approccio ci permette di consegnare immobili che non solo sembrano nuovi, ma sono anche pronti ad accogliere la vita moderna nella sua piena espressione.


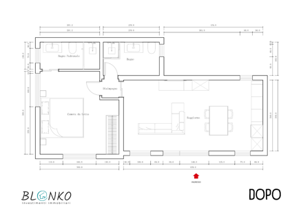
In questo lavoro abbiamo deciso di eliminare del tutto il bagno della zona giorno per poter creare un open space con cucina lineare, tavolo e divano con penisola. Il vecchio bagno della zona notte é diventato il nuovo bagno della zona giorno ed é stato ricavato, per la zona notte, un bagno adiacente a quello esistente. Per passare alla zona notte e al bagno della zona giorno é stato creato un piccolo disimpegno che funziona anche da antibagno.